Требования к вентиляционным системам
Нормы вентиляции обязательно должны соблюдаться. Гигиенические требования к микроклимату описаны в СНИП. К вентиляции офисов в различное время года будут отличаться: в летний период температура воздуха должна составлять 19–21 градус, а зимой 23-25. Влажность в помещении в теплое время года не должна превышать 60 %, а в зимний период – 65%. Скорость воздушного потока зимой и летом 0,2–0,3 м/с.
Заданные нормы воздухообмена представлены для помещений 2-3 категории. Нормирование микроклимата может осуществляться естественным путем или принудительной центральной вентиляционной системой.
Обеспечение оптимального микроклимата и поддержание санитарно-гигиенических норм предполагает удержание необходимого температурного режима в жаркий период на уровне 28 градусов или ниже. В противном случае должна быть спланирована вентиляция и кондиционирование.
Требования СНИП базируются на конструкции помещений, их предназначении. Рассчитывают кратность теплообмена по спец-формулам и таблицам. Мощность притока воздуха будет зависеть от наполняемости комнаты людьми и бытовой техникой. Чаще всего используется централизованная вентиляционная система.
В проектировании офисной системы кондиционирования учитывается последующий ремонт вентиляции. Автономная вытяжка оборудуется в санузлах, курилках, в комнатах, с большим скоплением техники. Соответственно СНИП отдельные вытяжные фильтры могут локализоваться в конференц-залах.
Поддержание оптимального микроклимата достигается за счет того, что поток воздуха проходит в каждое отдельное помещение. Часть воздуха подается на коридоры и помещения, оборудованные только вытяжной системой.
Удаление углекислого газа из помещений происходит, за счет вытеснения его воздухом в помещение, оснащенное вытяжкой. По требованиям СНИП, в комнатах с площадью 35 квадратных метров и выше предполагается установка одновременно приточных и вытяжных трубопроводов.
Одновременная установка приточных и вытяжных воздуховодов требуется в офисных помещениях площадью более 35 квадратных метров
Проект системы вентиляции офиса
Типичные проект вентиляции офисного помещения
На систему вентиляции офисного здания возлагается целый ряд функций. Поэтому при проектировании учитываются многие факторы, регламентируемые правилами СНиП вентиляции офисных помещений №№ 2.09.04.87 и 2.04.05.91. Система собирается из узлов различной стоимости, функциональности и конструкции. Задача проектировщиков правильно их подобрать.
С заказчиком согласуются следующие моменты:
- расположение вентиляционной установки;
- расположение вентканалов;
- мощность электросистемы, возможность подачи воды;
- необходимость и пути дренажной системы;
- доступ к оборудованию после установки;
- возможность изменения конструкции.
Проектирование систем вентиляции для офисов включает:
- расчеты теплопритоков для каждого отдельного помещения в зависимости от архитектурных особенностей, назначения с учетом технического задания к проекту;
- расчет воздухообмена;
- аксонометрическая схема коммуникаций;
- аэродинамический расчет, позволяющий определить площадь сечений воздуховодов и потери давления по сети;
- подбор всего необходимого оборудования для комплектации системы вентиляции в офисе;
- расчет мощности обогревателя в приточной установке;
- подготовка пакета проектных документов.
Нормы вентиляция помещений СНиП
Также что касается норм СНИП вентиляция помещений, то она должна осуществляться автоматически, без ручного управления. Конечно, специалист может оперативно вмешиваться в работу той или иной зоны, но кратковременно и без нарушения правил техники безопасности.
Системы управления микроклиматом в комнатах должны обеспечивать расчетные показатели непрерывно, что не допускает даже кратковременный выход из строя каких-либо элементов системы воздухообмена. В этом случае, чтобы избежать форс-мажорных ситуаций, в помещениях устанавливаются дублирующие устройства, которые срабатывают при отказе основного узла.
Оборудование для качественной вентиляции офисных помещений.
Естественная вентиляция офисным помещениям мало подходит из-за их герметичности. Пластиковые окна, двери из металлопласта и стекла не пропускают достаточно воздуха в помещения и блокируют его циркуляцию.
Поэтому для качественной вентиляции устанавливается специальное климатическое оборудование, которое подбирается согласно требованиям для каждого пространства отдельно.
Вытяжная вентиляционная установка.
Ставится для оттока используемого воздуха из комнаты. Может быть местной и общеобменной. Местная вентиляция удаляет воздух только из одного помещения, в котором установлена, А общеобменная системы способна удалить загрязнённый воздух из всех помещений здания. При этом обе установки обеспечивают достаточный приток свежего воздуха взамен удалённого;

Оборудование приточного вентилирования.
Создаёт нагнетание свежего воздуха внутрь помещения, за счёт большого его количества происходит выталкивание переработанного воздуха через вентиляционное отверстие.

Плюсы установки оборудования для приточного вентилирования в офис:
- хороший воздухооборот;
- постоянная подача свежего воздуха по всем офисным помещениям;
- мощная очистительная система внешнего воздуха;
- система нагрева уличного воздуха для комфортной температуры;
Приточно-вытяжная вентиляция.
Обеспечивает одновременно отвод отработанного воздуха и приток свежего.
Плюсы приточно-вытяжной вентиляции:
- непрерывный отвод загрязненного воздуха и насыщение помещений чистым;
- очистительная система уличного воздуха;
- система подогрева уличного воздуха до комфортной температуры;
- увлажнение уличного воздуха;
- экономное электропотребление.
Но у этого оборудования есть и минусы:
- шум. Лопасти вентилятора работают далеко не бесшумно;
- накапливание конденсата, который нужно переодически сливать;
- в зимнее время, холодный воздух нагревается, а вот летом — не охлаждается, что вынуждает устанавливать дополнительное охлаждающее оборудование;
Устройство канального кондиционирования;
Канальные кондиционеры фильтруют воздух и передают его по всем кабинетам здания с помощью системы воздушных шахт.
Плюсы такого оборудования для кондиционирования:
- высокая производительность;
- несколько испарительных блоков;
- надёжность;
- поддержка комфортного температурного режима в нескольких комнатах здания.
Но есть и минусы:
- высокая цена оборудования;
- большие требования к проектированию и установке;
- сложный монтаж;
- высокий уровень шума при неправильной установке;

Центральные кондиционеры.
Одна из самых эффективных систем кондиционирования. Способна обеспечить комфортный микроклимат в большом помещении с множеством отдельный комнат и кабинетов.
Подогревает или охлаждает уличный воздух, увлажняет и очищает его. Кроме того, такое оборудование надёжно и долговечно.
Как и большинство техники, центральные кондиционеры имеют свои недостатки:
- высокая стоимость;
- сложность монтажа;
- периодическое обслуживание

Центральные кондиционеры для вентиляции офисов
Центральный кондиционер с выходом на крышу
Центральные кондиционеры относятся к промышленной климатической технике. Они устанавливаются согласно СНиП и обеспечивают вентиляцию и кондиционирование офисных помещений. В модуле кондиционера воздух доводится до требуемых параметров температуры и влажности. Осуществляется рециркуляция воздуха (смешение отработанного и свежего), в том числе и частичная с подмесом. После обработки воздух подается в помещения по системе воздуховодов.
Преимущество центральных систем в отсутствии внутренних модулей. Одновременно с этим сам кондиционер представляет собой достаточно громоздкое сооружение, требующее отдельного помещения. Воздуховоды нужны тоже довольно объемные. При этом температура во всем здании будет поддерживаться на одном уровне.
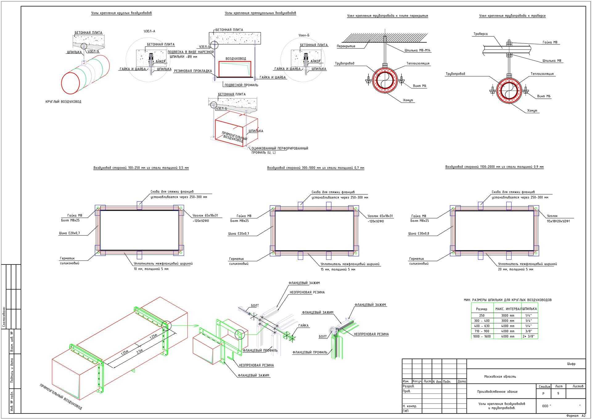
Компоненты офисных вентиляционных систем
Воздуховоды
Воздуховоды
Доставка воздуха в помещение и отвод его осуществляется по системе воздуховодов. Сеть воздуховодов содержит непосредственно трубы, адаптеры, разветвители, повороты и переходники, а также диффузоры и распределительные решетки. Диаметр воздуховодов, сопротивление всей сети, шум от работы вентиляции и мощность установки тесно взаимосвязаны. Поэтому для оптимальной работы вентиляции в процессе проектирования необходимо сбалансировать все показатели. Это сложная работа, правильно выполнить которую могут только профессионалы.
Давление воздуха вычисляется с учетом общей длины воздушных каналов, разветвленности сети и площади сечения трубы. Мощность вентилятора увеличивается при большом количестве переходов и ответвлений. Скорость движения воздуха в офисных вентиляционных системах должна быть около 4 м\с.
Решетки для забора воздуха
Устанавливаются в месте поступления воздуха с улицы в вентканал. Решетки защищают от проникновения в трубу насекомых, грызунов, атмосферных осадков. Производятся из пластика или металла.
Клапана воздушные
Предотвращают задувание ветра при выключенной системе вентиляции. Нередко к клапану подводится электропривод, управляемый автоматикой. В целях экономии используются ручные приводы. Тогда к клапану примыкает обратный пружинный клапан или «бабочка», чтобы на всю зиму перекрыть выходы вентканалов.
Воздушный фильтр
Очищает приточный воздух от пыли. Как правило, применяются фильтры грубой очистки, задерживающие до 90% частиц размером от 10 микрон. В некоторых случаях дополняется фильтром тонкой или особо тонкой очистки.
Калорифер
Используется для подогрева уличного воздуха зимой, бывают электрическими или водяными.
Электрические нагреватели обладают некоторыми плюсами по сравнению с водяными:
- простое автоматическое управление;
- легче монтируется;
- не замерзает;
- легко обслуживается.
Главный минус – высокая цена электроэнергии.
Водяные калориферы работают на воде температурой 70 – 95 градусов. Недостатки:
- сложная автоматическая система управления;
- громоздкий и сложный смесительный контур;
- за смесительным контуром требуется особый уход и надзор;
- может замерзнуть.
Но при грамотной эксплуатации обеспечивает значительную экономию средств по сравнению с электрическим нагревателем.
Вентиляторы
Один из важнейших узлов всей вентиляционной системы. Основные параметры при выборе: производительность, давление, уровень шума. Существуют радиальные и осевые типы вентиляторов. Для мощных и разветвленных сетей предпочтительнее радиальные вентиляторы. Осевые более производительны, но выдают слабое давление.
Шумоглушитель
Устанавливается после вентилятора для подавления шума. Основной источник шума в системе вентиляции для офиса – это лопасти вентилятора. Наполнитель шумоглушителя обычно минвата или стекловолокно.
Распределительные решетки или диффузоры
Устанавливаются на выходах воздуховодов в помещения. Находятся на виду, поэтому должны вписываться в интерьер и обеспечить распространение воздушных потоков во все стороны.
Автоматическая система управления
Осуществляет контроль над работой вентиляционного оборудования. Обычно устанавливается в электрощитке. Запускает вентиляторы, предохраняет от замерзания, оповещает о необходимости прочистки фильтров, включает и выключает вентиляторы и калориферы.
Усложняющие факторы
Практически любое здание в современной архитектуре может быть спроектировано с несколькими уровнями сложности. Офисные здания не являются исключением, так как в них может находиться множество вспомогательных помещений, требующих отдельного подхода к вентиляционным каналам.
Зоны для курения
Наиболее ярким примером таких пристроек является необходимость обеспечения раздельной вентиляции в помещениях, где курение разрешено. В нашей стране такие новшества пока не очень распространены, но в западных странах они присутствуют практически во всех вентиляционных конструкциях для офиса.
Скорость воздухообмена для “курящих” секторов значительно выше – до 100 м3/ч на человека. Кроме того, если обозначенный район расположен непосредственно в офисе, должна быть предусмотрена воздушная завеса, отделяющая этот район от остальной части помещения.
Серверные комнаты
Почти в каждой крупной компании данные предприятия хранятся на надежных серверах, которые устанавливаются в отдельных помещениях.
Такие помещения требуют точного контроля температуры и влажности, что также требует наличия отдельного вентиляционного контура.
Дополнительная автоматизация
При проектировании инфраструктурных систем современных зданий всегда необходимо учитывать фактор энергоэффективности. Одним из способов значительного сокращения расходов на электроэнергию является установка модуля управления автоматической системой вентиляции.
Эффект такого решения достигается двумя способами:
- активация приборов на основе показаний датчиков (в случае превышения НСР углекислого газа, колебаний температуры и т.д.);
- переключение системы на минимальное энергопотребление в ночное и вечернее время (и в любой другой непиковый период).
Рекуперация
Учитывая, что конструкция вентиляции офиса почти всегда представляет собой полноценную приточно-вытяжную систему, максимальное потребление энергии затрачивается на нагрев поступающих потоков.
Следует отметить, что в случае офисов стоимость подогрева воздуха ниже, чем, например, в аудиториях. Это связано с тем, что часть тепловой энергии постоянно излучается рабочими устройствами в окружающую среду.
Однако при коэффициенте воздухообмена 3 потери в поддержании необходимого баланса тепла значительны. По этой причине большинство современных конструкций офисной вентиляции оснащены рекуператорами, что позволяет снизить затраты на подогрев воздуха на 70-80%.
Состав проекта вентиляции
Рассмотрим подробнее состав листов которые обязательно входят в проект:
Общие данные по чертежам
Включает краткое описание систем, чтобы любой монтажник и строитель мог быстро сориентироваться в проекте. В общие данные входит сводная таблица характеристик систем вентиляции с параметрами всего вентиляционного оборудования и нагрузками на систему электроснабжения и теплоснабжения здания.

Планы систем вентиляции
Ключевые листы проектной документации. По ним выполняются монтажные работы, согласование инженерных систем и последующее сервисное обслуживание. На планах показывают трассировки воздуховодов, их размеры, расходы воздуха на каждом участке, марки решеток и вентиляционного оборудования.

Схемы систем вентиляции
На схемах показывается размещение воздуховодов по вертикали и возможные опуски в местах пересечений. В нашей команде схемы строятся в 3D программе MagiCAD. Программа автоматически просчитывает расходы воздуха и балансирует ветки.

План и схемы систем теплоснабжения
В комплект проекта вентиляции обязательно входит раздел теплоснабжения приточных установок. Приточный воздух зимой должен подогреваться. Для этого чаще всего используется водяной нагреватель и рекуператор. Воздух нагревается в рекуператоре, а затем проходить через секцию водяного нагрева, которая подключается к системе теплоснабжения. Трубы теплоснабжения и всю обвязку нагревателей должен просчитать инженер-проектировщик. Система теплоснабжения должна быть сбалансирована с другими потребителями.

Стандартные элементы любого проекта. Воздуховоды разного размера и конфигурации крепятся по-разному. Крепежные элементы дополнительно заказываются монтажной организацией и должны строго соответствовать указанным в проекте требованиям.

- Спецификация оборудования и материалов
Спецификация — это точное количество материалов и оборудования, которые понадобятся для прокладки систем. В современном проектировании это стало намного проще. Программа MagiCAD автоматически просчитывает длины воздуховодов по чертежу. Проектировщику остается проверить расчет и самостоятельно дополнить недостающие элементы.

Без проекта невозможно правильно выбрать размеры воздуховодов, решеток, точно закупить необходимое количество материалов. Без проекта будет сложно сбалансировать систему.
В ходе проектных работ выполняются следующие расчеты:
- расчет воздухообменов. Расход воздуха в каждом помещении рассчитываем по нормам кратности или дополнительным расчетам на удаления избытков тепла или влаги.
- аэродинамический расчет. В ходе расчета мы решаем 2 задачи. Во-первых, узнаем полное давление, которое должен обеспечить вентилятор, чтобы гарантировано подавать воздух во все помещения. Во-вторых, мы балансируем ветки системы вентиляции между собой. Одна ветка вентиляции длиннее, а другая короче. Воздух всегда идет по кратчайшему пути, и нам необходимо сбалансировать систему так, чтобы воздух по всем веткам системы подавался равномерно.
- дополнительные расчеты на удаление избытков тепла и влаги. В некоторых помещения главной задачей является не подача воздуха на дыхание человека, а удаление избытков теплоты (например, на кухне) или влаги (например, в бассейнах). Есть много помещений, гдевоздухообмен не считается по нормам, а выполняется свой отдельный расчет.
Расположение приточных каналов
При разработке вентиляции для помещений, где в течение продолжительного времени находятся люди, крайне важно правильно определить положение приточных диффузоров. Сделать это не так легко, как это может показаться на первый взгляд, поскольку их расположение влияет на общую эффективность всей системы
Сделать это не так легко, как это может показаться на первый взгляд, поскольку их расположение влияет на общую эффективность всей системы.
Различают два принципиально разных подхода к организации приточно-вытяжной вентиляции: смешивающий и вытесняющий.
Приточно-вытяжная вентиляция офиса
В системах смешивающего типа приточные каналы монтируются на потолке, а температура входящего потока значительно ниже рабочей температуры воздуха внутри офиса (13-15C).
Требуемый эффект – снижение концентрации CO2 – в данном случае достигается за счёт «разбавления» активной воздушной смеси.
Главная проблема такого подхода – правильное положение и конструкция диффузоров, которые не должны создавать ощутимо холодных потоков.
В вытесняющих системах приток организовывается через пол или низко-расположенные диффузоры. Температура входящего потока – 18C. Попадая в более тёплую среду, входящие потоки начинают конвективное движение к потолку, вытесняя, таким образом, все вредности, генерируемые в активной дыхательной зоне.
Вытесняющая вентиляция
Согласно последним исследованиям, вытесняющие системы обеспечивают более высокое качество вентиляции при тех же энергетических затратах.
Особенности проектирования офисной вентиляции
Параметры работы приточно-вытяжного воздухообмена регламентируются положениями СНиП о вентиляции офисных помещений. На стадии разработки проекта вентиляционной системы специалисты согласовывают с заказчиком:
- архитектурные, конструктивные особенности офисного строения/кабинетов;
- расположения вентиляционного оборудования;
- возможное расположение воздуховодных каналов;
- уровень мощности электрической установки;
- возможность подведения воды;
- пути отведения конденсата;
- обеспечение доступа к вентиляционному оборудованию;
- возможность внесения конструктивных изменений.
При проектировании вентиляционного сети производят расчеты:
- воздухообмена;
- коммуникационной схемы;
- теплопритоков для каждого помещения отдельно с учетом технических, конструктивных особенностей строения;
- площади сечений воздуховодных путей;
- потери давления по вентиляционной сети;
- оптимальной мощности колорифера.
Определяется необходимое оборудование для комплектации, установки вентиляционной сети. Готовится проектная документация.
Система кондиционирования
Хотя система кондиционирования воздуха чаще всего связана с вентиляцией в конструктивном плане, она имеет ряд функциональных и технических отличий. В данном разделе мы разберёмся, какие задачи выполняют устройства для охлаждения воздуха и как они различаются.
Что такое кондиционирование воздуха? Это процесс его охлаждения путём прохождения через отсек устройства, содержащий какой-либо хладагент. Классификация систем кондиционирования зависит от способа их обустройства — совместно с проветриванием или с помощью изолированных устройств.
В первом случае разрабатывается и монтируется такая вентиляционная система, которая наряду с циркуляцией воздуха может снижать его температуру. Для этого необходимо подобрать такое оборудование, которое будет снабжено не только фильтрами и вентиляторами, но и встроенными кондиционерами.
Преимущество такого метода: лёгкость монтажа и эксплуатации единой системы из нескольких совмещённых устройств. Недостаток: высокая стоимость приборов с вентиляцией и охлаждением.
Во втором случае кондиционирование воздуха осуществляется независимо от общей системы вентиляции при помощи изолированных устройств. Если охлаждение воздуха нужно обеспечить в рамках небольшой квартиры или офиса, для этого вполне подойдут обычные сплит-системы. Современные модели обладают массой полезных функций и могут самостоятельно поддерживать микроклимат в комнатах.

Если же речь идёт о кондиционировании целого здания, стоит обратить внимание на многоканальные установки. Система центрального кондиционирования состоит из мощного прибора охлаждения, от которого отводятся многочисленные трубы во все комнаты здания
Обычно главный кондиционер обладает большими габаритами, что осложняет поиск места для его размещения и монтажа. Однако эта установка прекрасно справляется с регулировкой температуры по всему зданию. Преимущества: небольшая стоимость и расширенная функциональность. Недостаток: сложности в управлении двумя изолированными системами
Система центрального кондиционирования состоит из мощного прибора охлаждения, от которого отводятся многочисленные трубы во все комнаты здания. Обычно главный кондиционер обладает большими габаритами, что осложняет поиск места для его размещения и монтажа. Однако эта установка прекрасно справляется с регулировкой температуры по всему зданию. Преимущества: небольшая стоимость и расширенная функциональность. Недостаток: сложности в управлении двумя изолированными системами.

Нормы воздухообмена в офисах
Регулирование стандартов вентиляции, влажности в офисном помещении происходит на этапе законодательном с помощью следующих документов:
Трудовой Кодекс РФ
СанПиН 2.2.4.48-96, где указываются требования к установлению микроклимата в производственном помещении.
Норматив обмена воздуха, изложенный в СП 60.13330. 2016, определяют назначением кабинета, а также числом работников в нём. Стандарты кратности воздухообмена на 1 сотрудника, описанные в нём:
- Помещение для совещаний — 60 м в кубе в час;
- Кабинет, где находится руководитель — 60 м в кубе в час;
- Приёмная — 40 м в кубе в час
- Если офис имеет открытый тип, то норма для него — 30 м в кубе в час;
- Коридор, а также холл — 11 м в кубе в час;
- Уборная имеет норму в 75 м в кубе в час;
- Курилка же — 100 м в кубе в час.
Обеспечить адекватную вентиляцию необходимо не только для производственной безопасности. Прямым образом она затрагивает здоровье сотрудника и качество его труда.
Требования к вентиляции офиса
Вентиляция офисного здания должна соответствовать следующим требованиям:
- обеспечение притока свежего чистого воздуха;
- удаление или фильтрация отработанного воздуха;
- минимальный уровень шума;
- доступность в управлении;
- небольшое энергопотребление;
- малые размеры, возможность гармонично вписать в интерьер.
Используемые ранее естественные системы вентиляции офисов сегодня не в состоянии обеспечить условия, регламентируемые санитарными нормами. Работу естественной вентиляции невозможно контролировать, эффективность ее очень зависит от параметров воздуха снаружи. Зимой такой способ грозит охлаждением помещения, а летом сквозняками.
Широко применяемые при возведении офисных зданий современные герметично закрывающиеся окна и двери, сплошное панорамное остекление препятствуют прохождению воздуха снаружи, вызывая его застой и ухудшение самочувствия людей.
Все требования к вентиляции офисных помещений указаны в СанПиН (Санитарные правила и нормы) 2.2.4.
Согласно документу влажность в помещениях должна быть:
- при температуре 25 градусов – 70%;
- при температуре 26 градусов – 65%;
- при температуре 27 градусов – 60%.
Рекомендуемая температура воздуха 22 – 24 градуса при влажности 40 – 60%.
Схема вентиляции офисного здания
Разработаны следующие нормы вентиляции в офисах с учетом назначения помещения, в кубометрах в час на 1 лицо:
- кабинет руководителя – от 50;
- конференцзал – от 30;
- приемная – в среднем 40;
- зал для переговоров – 40;
- кабинеты сотрудников – 60;
- коридоры и вестибюли – не менее 11;
- туалеты – от 75;
- помещения для курения – от 100.
СанПиН вентиляции офисных помещений регламентирует и скорость движения воздуха 0,1 м\с независимо от времени года.
Как правило, вентиляция небольших офисных помещений реализуется с помощью нескольких приточных установок. Если в жаркое время года приточная вентиляция офиса не в состоянии опустить температуру воздуха ниже 28 градусов, требуется дополнительное кондиционирование.
Если общая площадь не более 100 кв. метров и в нем 1-2 туалета разрешается естественная приточная вентиляция в офисе через форточки. Приточно-вытяжная вентиляция устанавливается в офисах средних и больших размеров.






























